×

Kis Tisza utca 6.

Hőszivattyús megújuló energiával

Megnevezés Szobák száma Lakás, üzlet, garázs (m2) Loggia, terasz, erkély (m2) Hasznos (m2) Kulcsrakész. ár (Ft)
Üzlet 1 35,63 0,00 27,2 elkelt
1. lakás 1 + 3 fél 77,31 11,29 85,7 elkelt
2. lakás 1 + 2 fél 71,14 5,50 73,9 elkelt
3. lakás 1 + 2 fél 60,58 12,11 66,6 elkelt
4. lakás 1 + 3 fél 77,31 10,02 84,8 109.500.000.-Ft,
5. lakás 1+ 2 fél 66,16 5,80 69 elkelt
6. lakás 1 +  2 fél 60,58 12,11 66,6 99.500.000.-Ft,
7. lakás 1 + 3 egész 113.2 103.2 150 210.000.000.-Ft,
8. lakás + kert 1 + fél 46,89 7,03 50,4 elkelt
9. lakás + kert 1 + fél 46,64 7,75 50,5 elkelt
10. lakás 1 + fél 47,27 22,60 54,8 elkelt
11. lakás 1 + fél 46,9 25,87 55,5 elkelt
12. lakás 1 + fél 41,75 7,75 45,6 elkelt
13. lakás 1 + fél 41,29 7,61 45,1 elkelt

 

Megnevezés Alapterület (m2) Emeltszíntű szerk. ár (Ft)
1 garázs 17,13 elkelt
2 garázs 16,5 elkelt
3 garázs 16,5 elkelt
4 garázs 16,5 elkelt
5 garázs 16,5 elkelt
 
parkoló 1 db 5.000.000.-Ft

 

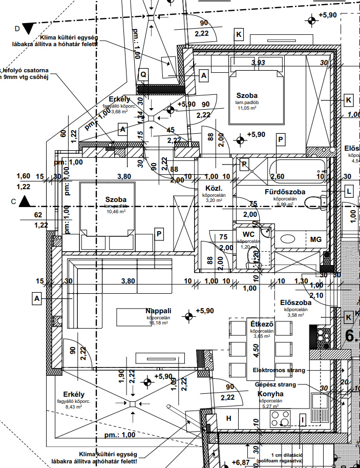
4-es lakás:

Elad laks, Szeged, Kistisza utca

Teljes alaprajz >>

 

6-os lakás:

Elad laks, Szeged, Kistisza utca

Teljes alaprajz >>

 

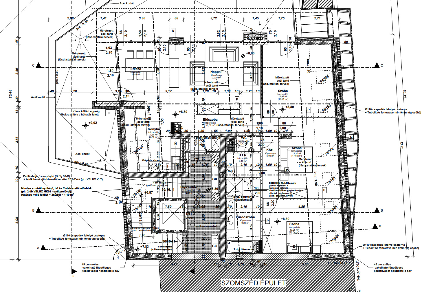
7-es lakás:

Elad laks, Szeged, Kistisza utca

Teljes alaprajz >>

Átnézeti alaprajz:


Földszint, utcai épület:

1. emelet, utcai épület:

2. emelet, utcai épület:

Tetőtér, utcai épület:

Földszint, udvari épület:

1. emelet, udvari épület:

Tetőtér, udvari épület: